Warwick Road, Earls Court, SW5
£812 Per Week To Let
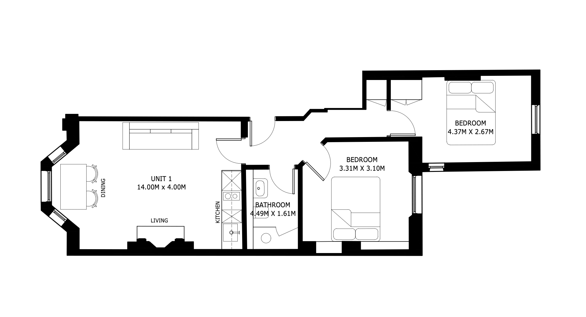
- Bedrooms: 2
- Bathrooms: 1
- Reception Rooms: 1
- Local Authority: Royal Borough of Kensington & Chelsea
- Energy Performance: C
A beautifully refurbished two-bedroom apartment set within an elegant period building, combining classic architectural features with contemporary interior design to create a stylish and comfortable Central London home.
The property opens into a welcoming hallway leading to a bright reception room with impressive ceiling height and a large bay window, allowing excellent natural light throughout the day. The living space provides ample room for both relaxing and dining, enhanced by decorative cornicing, wood flooring and tasteful modern décor. Adjacent to the reception area is a modern open-plan kitchen fitted with sleek cabinetry, integrated oven and hob, and generous worktop space, making it both practical and visually appealing.
There are two well-proportioned bedrooms, each finished in neutral tones to maximise light and space. The principal bedroom comfortably accommodates a double bed and storage furniture, while the second bedroom is ideal as a guest room, home office or study. The contemporary shower room is finished to a high standard, featuring a large walk-in shower, vanity basin, WC and modern tiling.
The apartment is ideally located close to a wide range of local amenities including cafés, restaurants, boutique shops and supermarkets, as well as nearby Underground stations providing convenient access to the West End, the City and Paddington. Nearby green spaces offer additional appeal, making the property well suited to professionals, sharers or a couple seeking a high-quality London residence.
A rare opportunity to be the very first resident and this newly refurbished gem.
Key features
– Refurbished two-bedroom apartment
– Attractive period building
– Bright reception room with bay window
– High ceilings and character features
– Well-proportioned bedrooms
– Water is payable directly to landlord – £50 per month

